Газовый котел BAXI SLIM 1.300 Fi
Газовый котел BAXI SLIM 1.300 Fi
Газовый котел BAXI SLIM 1.300 Fi
Газовый котел BAXI SLIM 1.300 Fi
Газовый котел BAXI SLIM 1.300 Fi
Газовый котел BAXI SLIM 1.300 Fi
Газовый котел BAXI SLIM 1.300 Fi
Газовый котел BAXI SLIM 1.300 Fi
Газовый котел BAXI SLIM 1.300 Fi
Газовый котел BAXI SLIM 1.300 Fi
Уважаемые клиенты!

Цена действительна при оплате за наличный расчет или при оплате по QR-коду в счете. При безналичном расчете или оплате картой +3% к стоимости товара.

Газовый котел BAXI SLIM 1.300 Fi, 1-конт., закр. кам.

WSB43530301-
236 000,00 ₽

Срок поставки: от 1 до 3 дней
Мощность: 29,7 кВт
Принцип работы: классический
Камера сгорания: закрытая
Диаметр дымохода: 60/100 мм
Кол-во контуров: один

 

Напольный газовый котел отопления BAXI SLIM 1.300 Fi

Газовая система BAXI SLIM 1.300 Fi
• Непрерывная электронная модуляция пламени, как в режиме отопления, так и в режиме ГВС;
• Плавное электронное зажигание;
• Горелка из нержавеющей стали;
• Котлы адаптированы к российским условиям. Устойчиво работают при понижении входного давления природного газа до 5 мбар;
• Возможна перенастройка для работы на сжиженном газе.

Гидравлическая система BAXI SLIM 1.300 Fi
• Чугунный первичный теплообменник;
• Высокоскоростной циркуляционный насос с автоматическим воздухоотводчиком;
• Манометр;
• Постциркуляция насоса;
• Возможность подключения внешнего накопительного бойлера для горячей воды.

Температурный контроль BAXI SLIM 1.300 Fi
• Два диапазона регулирования температуры в системе отопления: 30-85°С и 30-45°С (режим «теплые полы»);
• Устройство дистанционного управления с климатическим регулятором (поставляется отдельно);
• Встроенная погодозависимая автоматика (возможность подключения датчика уличной температуры);
• Регулирование и автоматическое поддержание заданной температуры в контуре отопления;
• Регулирование и автоматическое поддержание заданной температуры в отдельном бойлере;
• Возможность подключения программируемого таймера;
• Электронная индикация температуры.

Устройства контроля и предохранительные устройства BAXI SLIM 1.300 Fi
• Электронная система самодиагностики;
• Ионизационный контроль пламени;
• Защитный термостат от перегрева воды в первичном теплообменнике;
• Датчик тяги для контроля за безопасным удалением продуктов сгорания (пневмореле — для моделей с закрытой камерой сгорания);
• Система защиты от блокировки насоса (включается автоматически каждые 24ч.);
• Предохранительный клапан в контуре отопления (3 атм.);
• Система защиты от замерзания в контуре отопления и бойлере.

Акция
газовый котел BAXI
Тип оборудования
котёл газовый
Напряжение сети, В
220
Управление
электронное
Способ крепления
напольный
Защита от перегрева
да
Предохранительный клапан
да
Индикация включения
да
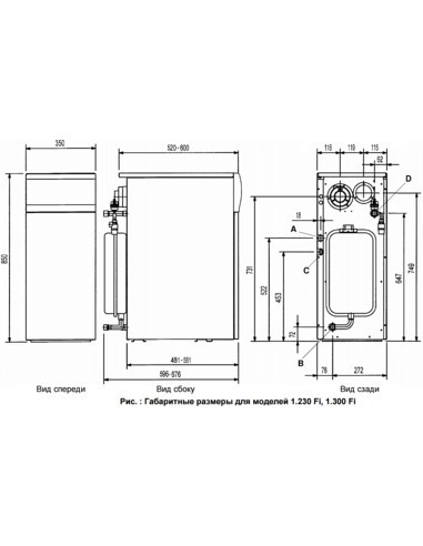
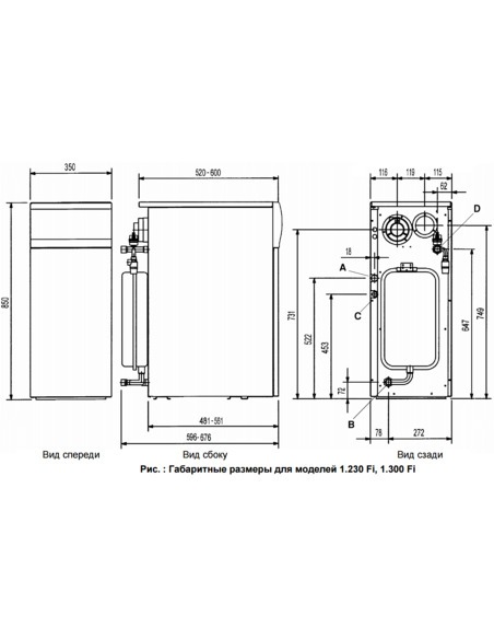
Высота, мм
850
Ширина, мм
350
Глубина, мм
676
Вес, кг
144
Гарантия, лет
2
Модель
SLIM
Тип отопительного котла
газовый
Количество контуров котла
одноконтурный
Принцип работы газового котла
классический
Тип камеры сгорания
закрытый
Встроенный циркуляционный насос
да
Система защиты от блокировки насоса
да
Встроенный расширительный бак
да
Объем расширительного бака, л
10
КПД, %
90
Горелка
газовая
Природный газ
да
Сжиженный газ
да
Расход природного газа, куб. м/час
3,49
Расход сжиженного газа, кг/час
2,56
Модуляция пламени
да
Разъем для подключения внешнего управления
да
Максимальная тепловая мощность, кВт
29,7
Максимальная тепловая нагрузка, кВт
33
Номинальное давление природного газа (мин.), мБар
5
Номинальное давление природного газа, мБар
20
Допустимое давление сжиженного газа, мБар
30
Автоподжиг
да
Газ-контроль
да
Автодиагностика
да
Защита от замерзания
да
Манометр
да
Воздухоотводчик
да
Патрубок подключения газа
1/2"
Патрубок подключения контура отопления
3/4"
Диаметр коаксиального дымохода
60/100
Максимальное давление воды в контуре отопления, бар
3
Мин. темп. теплоносителя, °C
30
Макс. темп. теплоносителя, °C
85
Минимальная тепловая мощность, кВт
14,9
Минимальная тепловая нагрузка, кВт
17
Материал первичного теплообменника
чугун
Дополнительная информация
с 14-го месяца эксплуатации, гарантия действительна при прохождении ТО
Подключение теплого пола
да
Подключение раздельного дымохода
да

Итальянская компания BAXI S.p.A. занимается производством оборудования для отопления и горячего водоснабжения уже более 50 лет. Ассортимент выпускаемой продукции включает настенные стандартные и конденсационные газовые отопительные котлы, напольные газовые котлы с чугунным теплообменником и электрические накопительные водонагреватели.

Общий годовой оборот компании составляет около 270 миллионов евро. В компании занято 800 сотрудников. Более 75% выпускаемой продукции поставляется на экспорт в 70 стран по всему миру.

Компания BAXI S.p.A. была основана в 1924 году австрийской семьей Westen, которая открыла в городе Bassano Del Grappa фабрику по производству эмалированной посуды. 

В период с 1978 по 1984 год компания входила в группу Zanussi и занималась производством газовых котлов, электрических водонагревателей, стальных радиаторов и стальных ванн. 

C 1984 по 1998 года компания называлась Ocean Idroclima и входила в группу компаний El.Fi. С середины 80-х годов начинается активное развитие экспорта производимой продукции в мировом масштабе. 

В феврале 1999 года компания получает новое имя — BAXI S.p.A. и входит в состав холдинга BAXI GROUP, а начиная с 2009 года — в группу BDR Thermea. 

Сегодня внутри холдинга BDR Thermea завод BAXI S.p.A. является центром по производству настенных газовых котлов. Общий объем выпускаемой продукции составляет около 500000 единиц газовых настенных котлов в год, включая такие популярные серии, как MAIN, LUNA, ECO, NUVOLA. 

В 1993 году компания BAXI S.p.A. одной из первых в отопительном секторе получила международный сертификат системы качества производства ISO 9001. 

В конце 2001 года завод BAXI S.p.A. был удостоен сертификата экологичности производства ISO 14001. 

Вся продукция, выпускаемая на заводе BAXI S.p.A., отличается высоким качеством и надежностью. А благодаря квалифицированной сервисной и технической поддержке продукция под маркой BAXI завоевала заслуженное доверие покупателей во многих странах мира.

Товар добавлен в список желаний
Товар добавлен в сравнение