Газовый котел Ferroli Pegasus 56
Газовый котел Ferroli Pegasus 56
Газовый котел Ferroli Pegasus 56
Газовый котел Ferroli Pegasus 56
Газовый котел Ferroli Pegasus 56
Газовый котел Ferroli Pegasus 56
Газовый котел Ferroli Pegasus 56
Газовый котел Ferroli Pegasus 56
Газовый котел Ferroli Pegasus 56
Газовый котел Ferroli Pegasus 56
Газовый котел Ferroli Pegasus 56
Газовый котел Ferroli Pegasus 56
Уважаемые клиенты!

Цена действительна при оплате за наличный расчет или при оплате по QR-коду в счете. При безналичном расчете или оплате картой +3% к стоимости товара.

Газовый котел Ferroli Pegasus 56, 1-конт., откр. кам.

0E4L6AWA
250 400,00 ₽

Срок поставки: от 1 до 3 дней
Мощность: 56,0 кВт
Принцип работы: классический
Камера сгорания: открытая
Диаметр дымохода: 180 мм
Кол-во контуров: один

 

Газовый котел Ferroli Pegasus 56 – напольный традиционный одноконтурный котёл тепловой мощностью 56 кВт с чугунным теплообменником и атмосферной горелкой.

Особенности котла Ferroli Pegasus 56:

  • Теплообменник водогрейный, состоит из чугунных литых секций, соединение между которыми осуществляется: по воде – стальными ниппелями, по дыму – специальным герметиком; секции стянуты стальными шпильками.
  • Атмосферная горелка из нержавеющей стали.
  • Газовый клапан – с механической настройкой необходимого рабочего давления газа на горелке.
  • Автоматический электронный розжиг пилотной и основной горелок.
  • Ионизационный контроль пламени.
  • Релейная автоматика с аналоговой панелью управления котла – без возможности управления контуром ГВС; для подключения бойлера необходимо использование опционного блока приоритета ГВС.
  • Имеет клеммы для подключения насоса системы отопления
  • Предельный термостат с автоматическим замыканием.
  • Термостат дымоудаления с ручным замыканием.
  • Работа с комнатным термостатом типа «ON/OF» (опция) позволяет поддерживать постоянную температуру воздуха в помещении при установленной температуре воды в системе отопления, при необходимости включая и выключая котёл.
  • Возможность объединения котлов в каскад при помощи опционного электронного блока каскадного регулирования.
  • Возможность эксплуатации котла на природном (по умолчанию) или на сжиженным газе.
  • Возможность, при соблюдении соответствующих правил, работать на антифризе.
  • Возможность подключения турбонасадки принудительного дымоудаления.
Акция
газовый котел Ferroli
Тип оборудования
котёл газовый
Напряжение сети, В
220
Управление
механическое
Способ крепления
напольный
Индикация включения
да
Высота, мм
850
Ширина, мм
600
Глубина, мм
615
Вес, кг
191
Гарантия, лет
2
Модель
Pegasus
Тип отопительного котла
газовый
Количество контуров котла
одноконтурный
Принцип работы газового котла
классический
Тип камеры сгорания
открытый
КПД, %
91
Горелка
газовая
Природный газ
да
Сжиженный газ
да
Расход природного газа, куб. м/час
6,52
Расход сжиженного газа, кг/час
4,82
Дисплей
да
Модуляция пламени
да
Разъем для подключения внешнего управления
да
Максимальная тепловая мощность, кВт
61,5
Максимальная тепловая нагрузка, кВт
56
Номинальное давление природного газа, мБар
15
Допустимое давление сжиженного газа, мБар
35
Автоподжиг
да
Газ-контроль
да
Манометр
да
Патрубок подключения газа
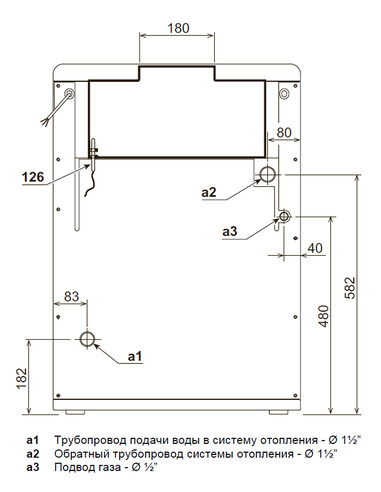
1/2"
Патрубок подключения контура отопления
1 1/2"
Максимальное давление воды в контуре отопления, бар
6
Макс. темп. теплоносителя, °C
95
Минимальная тепловая мощность, кВт
24,5
Минимальная тепловая нагрузка, кВт
21,6
Материал первичного теплообменника
чугун
Диаметр дымохода, мм
180

Компания FERROLI – международный лидер в производстве отопительного и климатического оборудования в бытовом и промышленном секторах, представленная в более 30 странах по всему миру.

ООО "ФерролиРус"- является официальным представительством Ferroli S.p.A на территории Российской Федерации, имеющее сеть официальных дилеров и авторизованных сервисных центров во всех областях России. Продукция Ferroli, представленная на российском рынке, производится на заводах в Европе и Азии.

Наличие логистического склада в Беларуси предусматривает непрекращающиеся отгрузки, а наличие региональных складов запчастей круглосуточно обеспечивает работоспособность и исправность отопительного оборудования.

Товар добавлен в список желаний
Товар добавлен в сравнение