Клапан вентиляционный HL905N
Клапан вентиляционный HL905N
  • -15%
Клапан вентиляционный HL905N
Клапан вентиляционный HL905N
Снижение цены
Уважаемые клиенты!

Цена действительна при оплате за наличный расчет или при оплате по QR-коду в счете. При безналичном расчете или оплате картой +3% к стоимости товара.

Клапан вентиляционный HL905N

HL 905N
9 452,00 ₽ 11 120,00 ₽ -15%

Срок поставки: от 3 до 7 дней
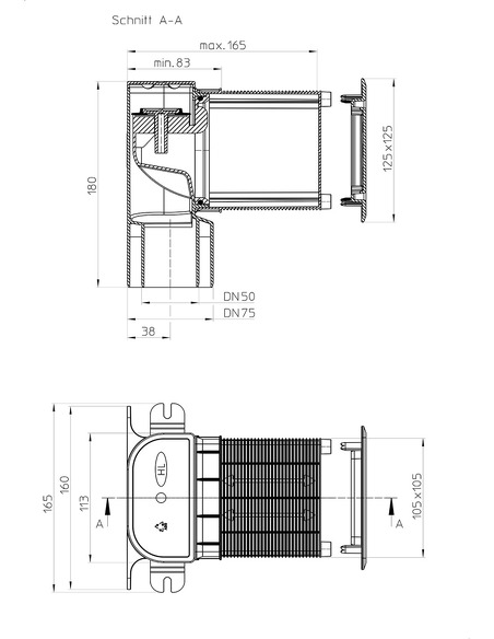
Диаметр: 50/75

 

Вентиляционный клапан HL 905 устанавливаемый на невентилируемые канализационные стояки предназначен для предотвращения срыва гидрозатвора с санитарнотехнических приборов, а также для предотвращения попадания загрязненного воздуха из канализационной сети в помещения.

Принцип действия:
При сливе воды через сантехнические приборы в канализационном стояке создается зона разрежения. За счет этого резиновая мембрана в вентиляционном клапане HL 905 поднимается, и в стояк поступает воздух, что обеспечивает нормальную и бесшумную работу канализационной сети. При выравнивании внешнего давления воздуха и давления в канализационной сети мембрана в вентиляционном клапане HL 905 под действием собственного веса опускается и закрывает вентиляционный клапан, и таким образом препятствует проникновению запахов из канализации в жилые помещения.

Особенности применения и установки:
Вентиляционный клапан HL 905 устанавливается вертикально в верхней части невентилируемого канализационного стояка (стояк должен заканчиваться вентиляционным клапаном) на высоте не менее 300 мм от места присоединения к стояку наиболее высоко расположенного поэтажного отвода (выше уровня борта сантехприбора присоединенного к поэтажному отводу). Это обусловлено тем, что основным рабочим элементом клапана является уплотнительная мембрана, и необходимо исключить возможность попадания под мембрану грязи или брызг.
1. Вентиляционный клапан можно устанавливать в жилых помещениях (в санузлах), так как мембрана гарантированно запирает загрязненный воздух в канализационных трубопроводах.
2. Если клапан устанавливается в штробах, нишах, коробах, шахтах и т.п., необходимо предусмотреть беспрепятственное поступление воздуха к вентиляционному клапану, так как вода обладает большой способностью увлекать за собой воздух (1 л/c сточной жидкости стремиться увлечь за собой 25 л/с воздуха, т.е. в 25 раз больше!).

Тип оборудования
клапан вентиляционный

В 1950 году два целеустремлённых молодых человека L. Hutterer и V. Lechner основали новую компанию, которая специализировалась на производстве канализационного оборудования для бытовых водосточных систем и компаний химической отрасли. Огромный технический и коммерческий потенциал помог им организовать процветающую корпорацию, которая смогла полностью удовлетворить потребности расширяющегося рынка.

Шагая в ногу со временем, предприятие одним из первых начало применять полимерные материалы для производства инженерного сантехнического оборудования. Были внедрены инновационные технологии и передовые разработки в данной области. Это дало новый мощный толчок для развития Hutterer & Lechner GmbH и позволило фирме завоевать новые рынки сбыта.

Изначально производство было сосредоточено в небольшом цехе, но в течение последующих нескольких лет были выкуплены новые фабричные территории, которые впоследствии только расширялись. На сегодняшний день производственные цеха компании Hutterer & Lechner GmbH размещаются на территории площадью более 15000 кв. м и оборудованы самым передовым оборудованием.

В арсенале предприятия присутствуют уникальные инструменты, современные формовочные цеха и специальная техника для производства оборудования. Кроме того, на производственной территории размещено опытное производство, в котором недавно разработанные изделия подвергаются испытаниям, необходимым для запуска в серию.

Сейчас Hutterer & Lechner GmbH производит не менее 600 видов устройств для канализационных систем. Разнообразие оборудования дает возможность проектным и строительным организациям не подстраиваться под определенные требования, а использовать именно те модели сантехнического оборудования, которые необходимы на объекте. И не важно, трап это, канализационный затвор, кровельная воронка, сифон или дождеприемник.

Вся продукция тестируется автоматически и только при условии успешного прохождения теста поступает к конечному потребителю. На предприятии из года в год повышают качество выпускаемых товаров и культуру производства. В 1995 году это подтверждено сертификатом качества ISO 9001. Оборудование компании Hutterer & Lechner поставляется в страны Восточной и Западной Европы. На протяжении более чем 10 лет товары торговой марки HL успешно эксплуатируется на объектах в России.

Товар добавлен в список желаний
Товар добавлен в сравнение